Naam: Woonhuis Isaac, Klatteweg 28, 's-Gravenhage
Type: woonhuizen;
Opdrachtgever: H. en A. Isaac
Uitgevoerd: ja
Bestaand: ja
Architecten: Salomonson, H., 1957, 1959; Ruys, M., 1959, tuinaanleg-;
Adres: Klatteweg 28, 's-Gravenhage;
Archiefgegevens: NAi/SALO 116, 612
Bijzonderheden:

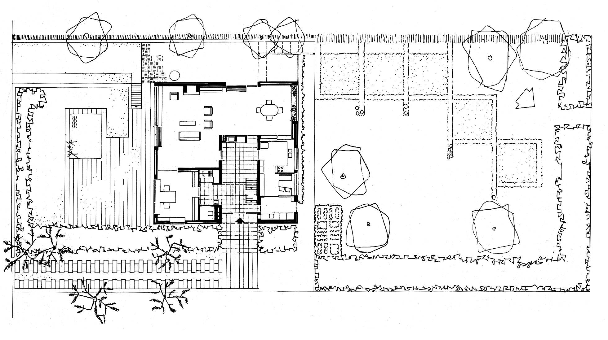
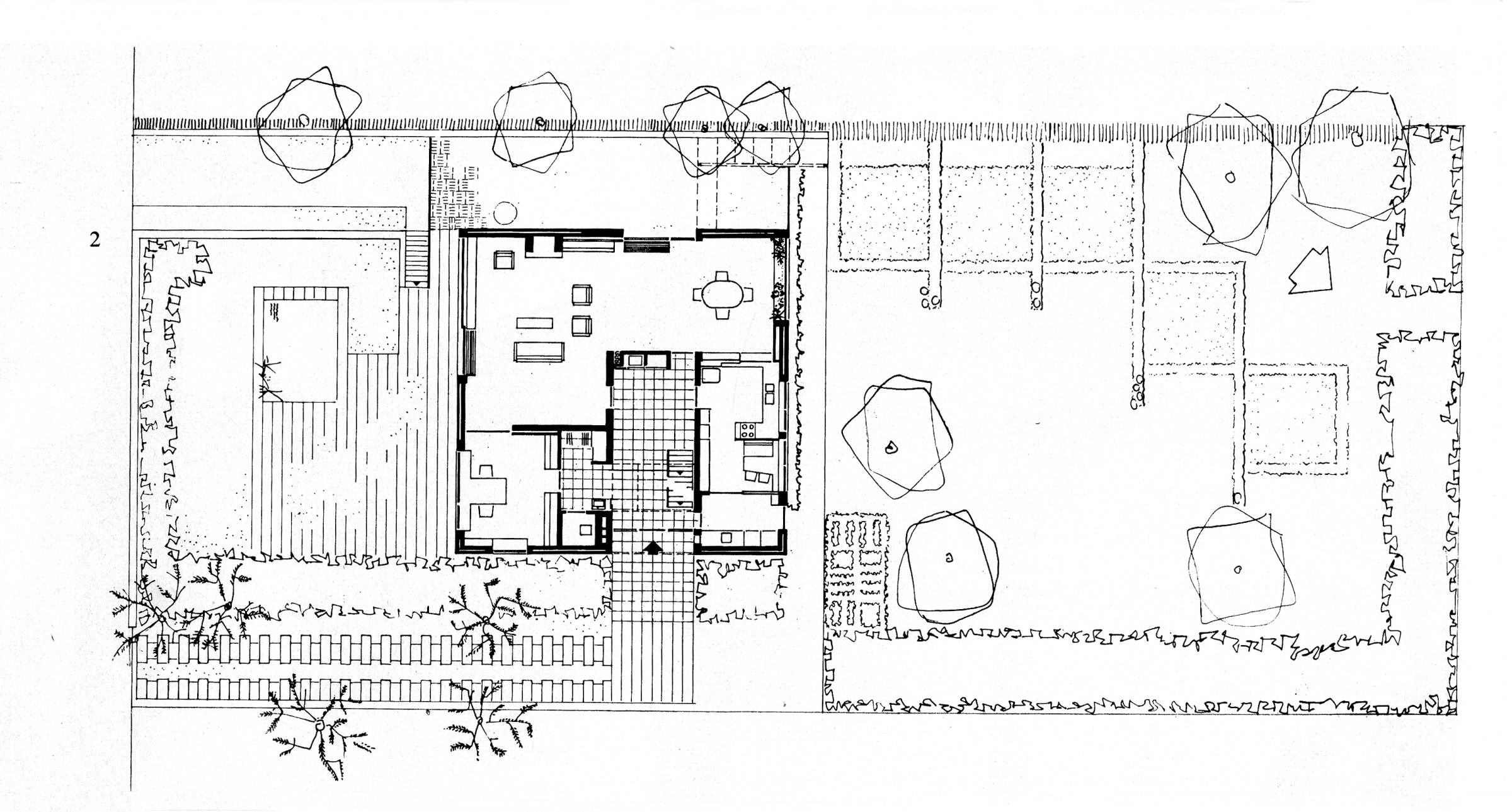
Twee veeleisende opdrachtgevers en een nauwgezet architect lijken elkaar bij deze opdracht te hebben ontmoet. Hugo Isaac was directeur en mede-eigenaar van het warenhuisconcern De Bijenkorf. Het huis Isaac is als een ?maatpak? ontworpen voor de bewoners. Dit blijkt vooral uit de zeer gedetailleerde uitwerking van het interieur. De eerste schetsen van het huis dateren uit 1957. Diverse ontwerpen werden gemaakt, waarbij met plaats en ori?ntatie van het huis werd geschoven. Het definitieve ontwerp werd in maart 1958 goedgekeurd. De bouw was gereed eind 1959. Het huis Isaac is gebouwd op een diep perceel in een Haagse villawijk. Het heeft een strakke hoofdvorm: een witte kubus op een zwarte plint. Het is gebouwd op een exact vierkante plattegrond, dertien bij dertien meter, en ligt dertien meter van de weg, terwijl de achtertuin zesentwintig meter diep is. De garage werd ondergronds naast het huis geplaatst. De zuidzijde van het huis is naar de weg gekeerd. Aan deze zijde is de kubusvorm met grote glazen puien en een doorlopend inpandig terras op de eerste verdieping het meest opengewerkt. Accenten zijn aangebracht in de vorm van het dakoverstek en de ?zwevende? luifels boven de hoofdentree en de toegang naar het terras. De noordgevel van het huis heeft een meer gesloten karakter (later gewijzigd). De constructie van het onderkelderde huis is traditioneel: bakstenen spouwmuren, betonvloeren en een flauw hellend dak op houten kapbalken. De bakstenen muren zijn warmwit geverfd. De zwarte plint en de tuinmuren zijn van gekamde mangaansteen. De vierkante plattegrond van het huis bevat op de begane grond een ruime entreehal, met trappenhuis en garderobe, een grote L-vormige woon-eetkamer, verbonden door een schuifdeur met een studeerkamer. De keuken, met een vaste eethoek, en de bijkeuken bevinden zich aan de tuinzijde (noorden). Tussen de keuken en het eetgedeelte van de woonkamer ontwierp Salomonson een dubbele kastenwand. De entreehal beneden, het representatieve trappenhuis en de brede gang boven worden verlicht door een zeer groot glasraam op de eerste etage. Een elegante bordestrap voert naar de eerste etage. Hier bevinden zich drie slaapkamers (een hoofdslaapkamer, een kamer voor de hulp en een ruime logeerkamer), een kleedkamer, twee luxueuze badkamers en een ruime berging met kasten voor kleding. De twee grote slaapkamers liggen aan het doorlopende inpandige balkon op het zuiden (een hekje verdeelt het balkon in twee aparte gedeelten en een verborgen buitenkast bevat balkonstoelen). Bij de interieurafwerking werd een keur aan materialen toegepast (leisteen, tapijt, marmer, diverse houtsoorten, textiel). Bijzondere elementen in het interieur zijn een in het stramien van een boekenkast opgenomen venster, een vast werkbureau dwars op het raam geplaatst met uitzicht over de tuin, de open haard in de woonkamer, een marmeren doorlopende zitbank als vensterbank boven verzonken radiatoren, een boekenliftje in de hal en het grote open trappenhuis. Opvallende elementen op de etage zijn het houten plafond in de gang, evenwichtig in vakken verdeeld, de kleedkamer van mevrouw Isaac, met toilettafel en vast zitje, en de vele tot in detail ingedeelde houten kasten. In ??n van de kasten in de hoofdslaapkamer was een uitklapbaar gasstelletje ontworpen om thee te zetten. De luxueuze badkamer had een aparte granito ruimte om kleding te ontkreukelen. Tuin en terrassen bij het huis werden ontworpen door Mien Ruys, de uitwerking van de opzet werd door de bewoners zelf ter hand genomen. De achtertuin was strak ingedeeld met een aantal plantenvakken op verschillende niveaus. Salomonson schreef over het ontwerp in het Bouwkundig Weekblad in 1961: ?De Klatteweg ligt in een stijlvol woongebied, aan de andere zijde is een mooi uitzicht door het geboomte op de lager gelegen kwekerijen. Uitzicht en zuidzijde zijn dus aan de wegzijde, wat op deze plaats niet als een nadeel ondervonden werd. In enkele jaren is een belangrijke uitbreiding van deze buurt, Duttendel, tot stand gekomen, waar vrijstaande woonhuizen, een winkelcentrum en flatgebouwen een nieuw stadsbeeld vormen. Dit huis is het eerste nieuwe naast een statige behuizing in engelse stijl. Ik meende dat de hoofdvorm niet simpel genoeg kon zijn. Het werd een vierkante etage bouw, met flauw hellend dak. De opdrachtgevers wensten een rustig huis met een ontspannen sfeer, waar men gasten goed en ongedwongen kan ontvangen. Het huis is vol boeken en er zijn plaatsen genoeg om uren onopgemerkt te zitten lezen.?

  Literatuur

Illustraties:

Literatuur wordt geladen ...