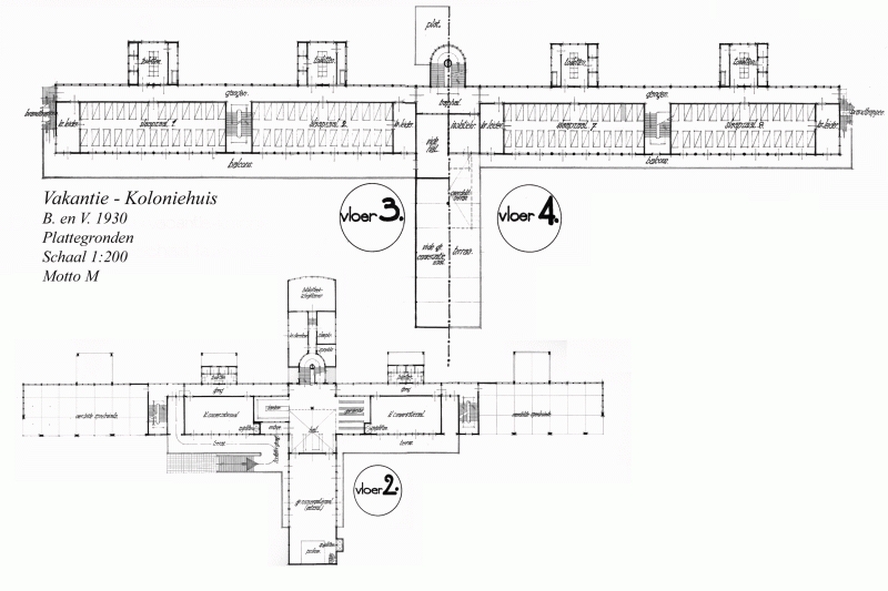
Naam: Vakantie-koloniehuis (ontwerp S. van Woerden)
Type: vakantieoorden;
Uitgevoerd: nee
Architecten: Woerden, S. van, 1930; Holt, G.H.M., 1930;
Archiefgegevens: NAi/WOER t2;NAi/WOER paneelnr. 10-13;NAi/HOLT 378
Prijsvraag: Prijsvraag Vakantie-koloniehuis
Motto: Motto "M"
Bijzonderheden:

Prijsvraaginzending van Holt en Van Woerden voor een vakantie-oord. Het betreft een plan voor een groot complex, met acht slaapzalen, elk voor 25 bedden. Het gebouw is ontworpen tegen een duin op. De ruwe bouwvorm is een kruis, met 2 korte en twee lange poten. De lange poten bevatten de slaapzalen en komen boven de korte (met ondersteunende functies uit).Opvallend is de uitkijktoren die boven het gebouw uitsteekt. Helaas is van de prijsvraag vrij weinig bekend. In de linkerbovenhoek van de isometrie-tekening "En attendant ce doux moment. Je vous embrasse".

Illustraties:

Literatuur wordt geladen ...