Naam: Woonbebouwing 't Duifje Arnhem
Type: woningbouwcomplexen;
Opdrachtgever: Sanders Bouwonderneming NV
Uitgevoerd: nee
Architecten: Hartsuyker, E. (Hartsuyker), 1968, 1969;
Bijdragen: Sanders Bouwonderneming NV -uitvoering-,
Adres: , Arnhem ('t Duifje);
Archiefgegevens: NAi/HART r47-r49
Bijzonderheden:

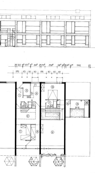
Het gaat hier om tien eengezins rijenhuizen in twee woonlagen en twintig galerijflats in een woongebouw van vijf woonlagen. Deze woningen die oorspronkelijk het predicaat experimenteel gekregen hadden gingen niet door, ook omdat de bouwonderneming bedenkingen kreeg dat de woningen voor hun prijs te weinig courant waren en daarom niet vlot genoeg van de hand zouden gaan. De woningontwerpen waren diep en smal met in het midden de natte cel met vide en trap. In een artikel van D. de Jonge in de Architect 1(1970)3 wordt kritisch geschreven over het predicaat 'experimenteel'. Hij vindt de ontwerpen alleen maar anders dan gebruikelijk, zonder dat aannemelijk wordt dat het op deze manier beter voor de bewoners wordt.

  Literatuur

Illustraties:

Literatuur wordt geladen ...