Naam: Theater Rembrandt Utrecht Oude Gracht
Type: theaters;
Opdrachtgever: Maatschappij Tuschinski nv Amsterdam
Uitgevoerd: ja
Bestaand: ja
Architecten: Van Toorn, J. Amsterdam, 1972, ontwerp letters voorgevel-; Dijkstra, Tj. (Architectengroep VDL), 1972, verbouwing-;
Adres: Oude Gracht 73, 3511 AD, Utrecht;
Archiefgegevens: archief Dijkstra/7204
Bijzonderheden:

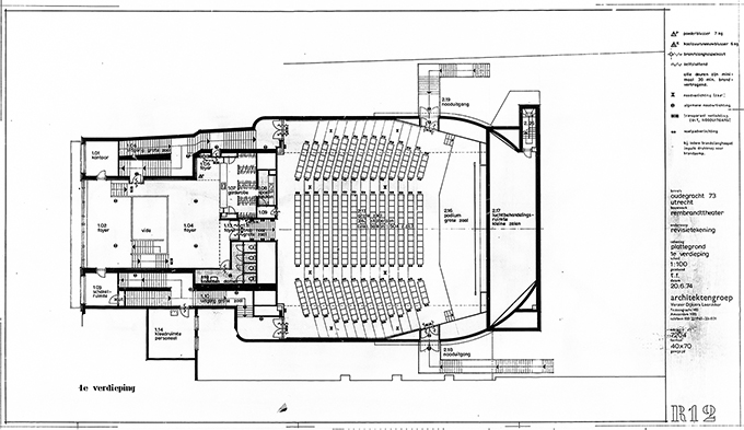
De verbouwing van Rembrandt Theater behelsde een wijziging van de gevel, de entree, de foyer en een herinrichting van beide bioscoopzalen. De foyer op de eerste verdieping kreeg een panoramisch uitzicht op de Oudegracht door een glaspui over de volle breedte. Op de buitengevel erboven werd over de volle hoogte een stalen raamwerk met metalen roosters aangebracht ten behoeve van filmaankondigingen. De gevel zelf werd donker geschilderd. Het interieur kreeg een nieuwe afwerking en een nieuw stoelenplan, maar bleef verder op hoofdzaken ongewijzigd.

Illustraties:

Literatuur wordt geladen ...