Naam: Weekendhuisje Ds. Faber-Chabot Goornstraat 6 Meppen
Type: vakantiehuisjes;
Opdrachtgever: A.D.H. Faber-Chabot
Uitgevoerd: ja
Architecten: Nicolaï-Chaillet, C., 1962, 1970, verbouwing van boerderij tot weekendhuis-;
Adres: Goornstraat 6, Meppen;
Archiefgegevens: NAi/Cora t5, a36, a33
Bijzonderheden:

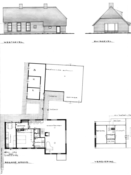
De verbouwing van dit huisje bestond uit twee fasen. De eerste fase dateert van rond 1962, de tweede van 1969-1970. Tijdens de eerste fase kwamen aan de zuidzijde de woonkamer met grote glaswand tot stand, een open verbinding naar keuken aan oostzijde en aan de noordzijde een studeerkamer. Op de ontwerpen van 1969-1970 staat een open haard voor de woonkamer en is de keuken gesitueerd aan de noordgevel. Tussen keuken en woonkamer ligt de grote slaapkamer met al eerder aanwezige sanitaire voorzieningen. Er bestaan ook schetsen voor logeerkamers, grenzend aan de belendende schuur.

Illustraties:

Literatuur wordt geladen ...