Naam: Ontwerpstudie interieur woonflat voor alleenwonende dame
Type: interieurs; ,studietekeningen;
Uitgevoerd: nee
Architecten: Nicolaï-Chaillet, C., 1946, 1947, interieur-;
Archiefgegevens: NAi/Cora t3; NAi/ABAM 464
Bijzonderheden:

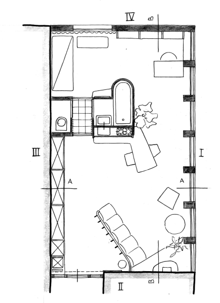
Ontwerp gemaakt tijdens de opleiding VHBO, klasse III-0 voor docent P.H. Hekkema. Een open plattegrond met dwars geplaatste sanitaire en kookvoorzieningen, die het slaapdeel van het woondeel scheiden.

Illustraties:

Literatuur wordt geladen ...