Naam: Gemeentehuis met school en politiebureau Bloemendaal (ontwerp Blaauw)
Type: gemeentehuizen; ,politiebureaus; ,scholen (bouwwerken);
Opdrachtgever: Gemeente Bloemendaal
Uitgevoerd: nee
Architecten: Blaauw, C.J., 1930, 1932;
Adres: Zeeweg, Bloemendaal;
Motto: Quint
Bijzonderheden:

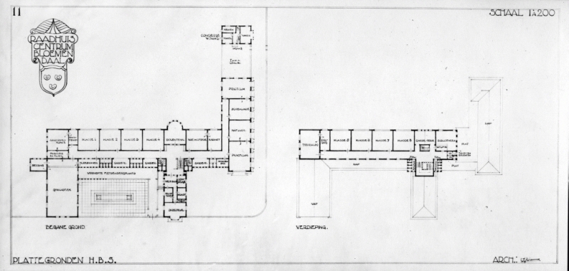
Meervoudige opdracht opgedragen aan zeven architecten voor het maken van een schetsplan voor een nieuw stadhuis, een bureau voor publieke werken, een bureau voor bedrijven, een politiebureau en een lagere school. De commissie van advies bestaande uit de architecten J. Gratama, A.R. Hulshoff en J. de Jongh beoordeelde de plannen van de uitgenodigde architecten C.J. Blaauw, A. Boeken, H.W. van Kempen, J.P.L. Hendriks (vervanger van A.P. Smits), A.J. van der Steur, H.Th. Wijdeveld en van het architectenbureau Mulder en Van Asdonk, dat op verzoek van de raad werd toegevoegd. In het beoordelingsrapport van de Commissie werd geadviseerd om de ontwerpers van motto's 'C.C.' en 'Quint' te verzoeken opnieuw een schetsplan te maken, nu rekening houdend met nieuwe wensen van de Bouwcommissie, o.a. voor een caf?-restaurant en een Hoogere Burgerschool. De nieuwe plannen, gemaakt door resp. Van der Steur en Blaauw, werden beoordeeld en Blaauw kreeg uiteindelijk de opdracht zijn voorstel verder uit te werken.De ontwerpen voor het raadhuis te Bloemendaal werden ge?xposeerd in de toonzalen van de firma Boskamp te Overveen.

  Literatuur

Illustraties:

Literatuur wordt geladen ...