Naam: School voor Genootschap Mathesis Scientarium Genitrix (MSG) Pieterskerkgracht-Lokhorststraat Leiden
Type: scholen (bouwwerken);
Opdrachtgever: Genootschap MSG
Uitgevoerd: nee
Architecten: Laan, L. Van Der, 1921;
Adres: Pieterskerkgracht-Lokhorststraat, Leiden;
Archiefgegevens: NAi/LAAX r60
Bijzonderheden:

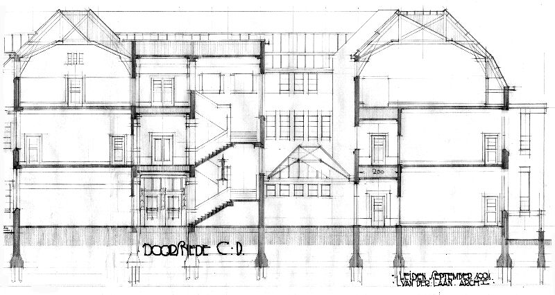
Het meest monumentale schoolgebouw dat bureau Van der Laan heeft ontworpen is het nooit uitgevoerde ontwerp voor Genootschap Mathesis Scientarium Genitrix (Wiskunde is de moeder van alle wetenschappen) aan de Pieterskerkgracht en Lokhorststraat te Leiden uit 1921. Het genootschap was sinds 1867 in hetzelfde neorenaissancistische gebouw als de HBS gehuisvest. Door de groei van het aantal leerlingen was deze school evenwel te klein geworden en werd opdracht gegeven tot de bouw van een nieuwe school. Deze werd uiteindelijk pas in 1966 opgeleverd aan de Dieperpoellaan. Het MSG bood jongens een technische opleiding aan, aanvankelijk alleen in de avonduren maar later ook met een dagopleiding. Het lijkt waarschijnlijk dat Leo van der Laan verantwoordelijk is geweest voor het verkrijgen van de opdracht, maar dat Jan het ontwerp maakte - een van zijn studietekeningen uit 1921, gemaakt tijdens zijn studie aan de TH Delft, is vrijwel identiek aan dit ontwerp. Deze wijze van samenwerking typeert bureau Van der Laan in de jaren twintig en dertig. Leo houdt zich dan voornamelijk met de zakelijke en technische aspecten van het bureau bezig, terwijl Jan zich vooral op de vormgeving richt. De monumentale hoofdgevel van de school aan de Pieterskerkgracht bestaat uit een entresol, twee bouwlagen en een hoog mansardeniveau. De risaliet in het centrum van de gevel bevat een imposant toegangsportaal met verdiepte en verhoogde deuren. De muurdammen zijn versierd met verticaal gelede ornamenten en versieringen in de vorm van masthouders en lantaarns. De overgang van de tweede bouwlaag naar het mansardeniveau wordt geaccentueerd door een borstwering. Het trappenhuis en een met glas overdekte binnenplaats bevinden zich in het centrum van de school. Hier omheen liepen concentrische gangen met lokalen. Het hoofdgebouw zou worden gebruikt voor theorielokalen; de zolderverdieping was bestemd voor ateliers die werden belicht door middel van een ingenieuze kapconstructie bestaande uit spanten, glas en een kleinere kap.

  Literatuur

Illustraties:

Literatuur wordt geladen ...