Naam: Kindcentrum Rivierenbuurt
Type: Basisscholen; ,peuterspeelzalen;
Opdrachtgever: Stichting Samenwerkingsscholen Rivierenwijk Deventer
Uitgevoerd: ja
Bestaand: ja
Architecten: Pol, L. van der (Dok architecten), 2012, 2015;
Bijdragen: Vintis Installaties -adviseur installaties-, Zri adviseurs -adviseur bouwfysica-,
Adres: Zaanstraat 1, 7417 WN, Deventer;
Bijzonderheden:

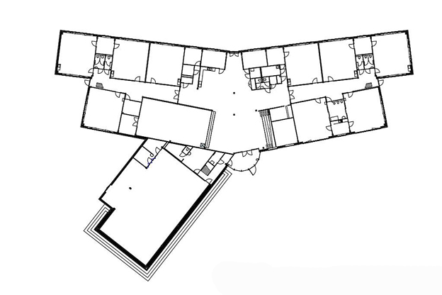
Het nieuwe Kindcentrum in het hart van de Rivierenwijk in Deventer maakt deel uit van de vernieuwing van deze veelzijdige groene buurt. Het Kindcentrum is een multifunctioneel gebouw waar de buurtbewoner terecht kan voor de ontwikkeling en opvang van het opgroeiende kind. Het bevat een basisschool met 15 lokalen, 2 speellokalen, een gymzaal en een peuter- en kinderopvang. Een uitnodigend licht gebouw waar plaats is voor ontmoeting, sport en spel. Door de bijzondere ligging is het makkelijk om het onderwijs mee naar buiten te nemen en alle zintuigen van de kinderen te prikkelen. De vorm van het gebouw past bij de locatie en functie. De centrale hal is een spannende ruimte met niveauverschillen en biedt goed overzicht over de lokalen in de vleugels. De traptribune nodigt uit tot klimmen en ontdekken en maakt de ruimte bruikbaar voor vele doeleinden. Door het gebruik van duurzame natuurlijke materialen en de mooie rondingen heeft het Kindcentrum een warme prettige uitstraling.

  Literatuur

Illustraties:

Literatuur wordt geladen ...