Naam: De Markthal Rotterdam
Type: appartementen; ,markthallen; ,parkeergarages; ,winkels;
Opdrachtgever: Provast Nederland bv
Uitgevoerd: ja
Bestaand: ja
Architecten: Maas, Winy (MVRDV), 2004, 2014;
Bijdragen: Peutz -adviseur akoestiek-, J.P. van Eesteren -aannemer-, Mobilis and Martens en Van Oord -aannemer-, Arno Coenen and Iris Roskam -kunsttoepassing-,
Adres: Dominee Jan Scharpstraat 298, 3011 GZ, Rotterdam;
Prijsvraag: Prijsvraag Markthal Rotterdam 2014
Bijzonderheden:

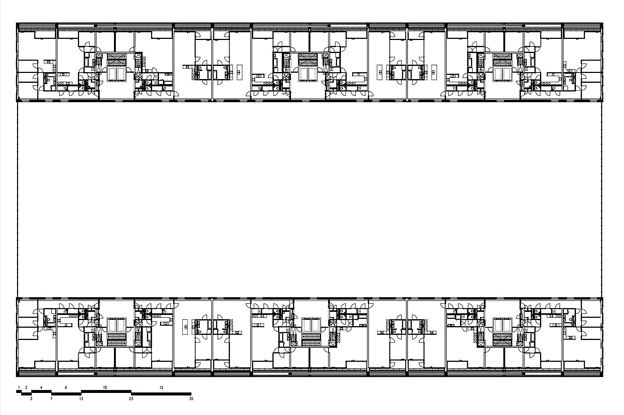
Op de plek waar Rotterdam is ontstaan, verrijst de eerste Markthal van Nederland. Dit gebouw wordt gerealiseerd In het Laurenskwartier, aansluitend op de buitenmarkt, tegenover station Blaak en op loopafstand van de Beurstraverse,. In de Markthal kan vrij van weersinvloeden worden gewinkeld onder een 40 meter hoge boog gevormd door 228 appartementen. De Markthal is – in navolging van Stockholm, Barcelona en Valencia – de eerste overdekte versmarkt in Nederland. Dit spectaculaire gebouw met z’n typisch Rotterdamse architectuur staat op een prominente plek aan de Binnenrotte. In de Markthal wordt puur en eerlijk voedsel aangeboden in iedere denkbare vorm. Een markt waar boodschappen doen een belevenis is. Onder een 40 meter hoge boog, waar men ook kan winkelen, parkeren, uit gaan eten, een terrasje pakken of zelfs gaan wonen. Per jaar worden er 4,5 tot 7 miljoen bezoekers verwacht, dat zijn 85.000 tot 135.000 mensen per week. De Markthal biedt plaats aan ruim 80 vers- en horecaondernemers. Het gebouw biedt een mix aan functies: versmarkt, foodwinkels, horeca, appartementen, een klein museum en parkeren. Met de Markthal heeft Rotterdam de primeur van een nieuwe stedelijke typologie, een hybride tussen markthal en woningbouw. Door de inzet van appartementen ontstaat een nieuw publiek gebouw. In de boog over de marktvloer bevinden zich 102 huur- en 126 koopappartementen, waaronder 24 kooppenthouses.

  Literatuur

Illustraties:

Literatuur wordt geladen ...