Naam: Basisschool De Spreeuwen
Type: Basisscholen;
Opdrachtgever: GO! Onderwijs voor de Vlaamse Gemeenschap
Uitgevoerd: ja
Bestaand: ja
Architecten: Happel, Ninke (Happel Cornelisse Verhoeven Architecten), 2011, 2015; Verhoeven, Paul (Happel Cornelisse Verhoeven Architecten), 2011, 2015; Cornelisse, Floris (Happel Cornelisse Verhoeven Architecten), 2011, 2015;
Bijdragen: IBO nv -aannemer-,
Adres: Battelsesteenweg 259, 2800, Mechelen;
Bijzonderheden:

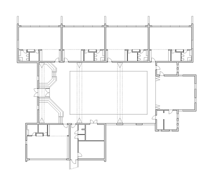
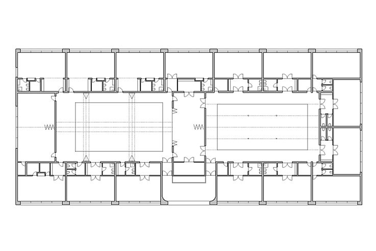
Basisschool De Spreeuwen bestaat uit een bonte aaneenschakeling van gebouwen en pleinen en is gesitueerd op een langwerpig kavel. De school werd door de jaren heen stelselmatig werd uitgebreid tot een heterogeen complex. Door de groei kwam men opnieuw in ruimtenood: er was behoefte aan tien nieuwe kleuterklassen en een overdekt speelplein.Het ontwerp stapt af van de pandsgewijze bouwtrend door het programma gespiegeld te rangschikken tegen het huidige kleuterblok. Een symmetrische entree vormt het hart tussen de oude en nieuwe vleugel en biedt toegang tot een overdekte buitenspeelkas waarvandaan de kleuterklassen worden bereikt. Deze buitenspeelkas vormt het collectieve hart van de school, een plek van samenkomst en stilte. De nieuwbouw vormt bouwkundig een citaat van de oudbouw; constructie, bouwhoogtes en geveldelen worden overgenomen. Om beide vleugels tot een collectief te smeden is de gevel voorzien van een zandkleurige vertinlaag en zorgt een continue dakranddetaillering voor een uniform silhouet.

  Literatuur

Illustraties:

Literatuur wordt geladen ...