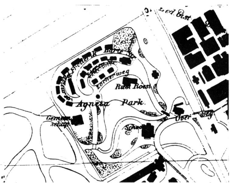
Naam: Agnetapark Delft
Type: tuinstadwijken;
Opdrachtgever: J.C. van Marken
Uitgevoerd: ja
Bestaand: ja
Architecten: Gugel, E.H., 1882; Kerkhoff, F.M.L., 1882; Zocher, L.P., 1882, landschapsarchitect-; Evers, H.J., 1913, uitbreiding met recreatiegebouw-; Gratama, J., 1925, 1927, uitbreiding park-;
Adres: Agnetapark, Delft;
Bijzonderheden:

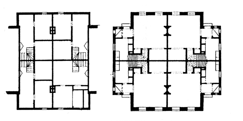
Het complex van in kleine groepjes als een geheel bijeen gelegen arbeiderswoningen, ieder voorzien van een eigen tuin, werd gesticht door J.C. van Marken, directeur van de naastgelegen Gist- en Spiritusfabriek te Delft. Zijn bedoeling was om de arbeiders van zijn fabriek goed en doelmatig te huisvesten. Dit initiatief bezat naast idealistische (verheffing van de arbeiders stand) ook economische motieven (een goed gehuisveste werknemer levert een dito productie) en kan als het eerste in Nederland worden benoemd; het Agnetapark werd in 1882 gesticht. Het complex bestaat behalve uit zes woningtypen, ook uit twee winkels, een onderwijscentrum, terwijl het ontspanningsgebouw en de villa van Van Marken inmiddels zijn gesloopt. De uitvoerende architecten waren E. Gugel en zijn assistent F.M.L. Kerkhoff, die in grote mate verantwoordelijk was voor de uitvoering. De parkachtige aanleg met waterpartijen en slingerend stratenpatroon werd door L.P. Zocher ontworpen. De oorspronkelijke situering van het Agnetapark, net buiten de oude stad, is grotendeels nog intact gebleven. In 1913 ontwierp Evers nog het recreatiegebouw 'De Tent' dat bedoeld was voor feesten, concerten, theateruitvoeringen en activiteiten als biljarten en kegelen. In de jaren 1925-1927 vond een uitbreiding plaats naar ontwerp van Gratama. De bijzondere cultuurhistorische waarde van het Agnetapark is gelegen in de vroege stichtingsdatum (de eerste zogeheten company in ons land), in de uitdrukking van een uitzonderlijke vertaling in de negentiende eeuw van de bouw van een woonwijk - in dit geval voor eigen arbeiders met hun gezinnen - en de daarmee samengaande bijzondere stedenbouwkundige kwaliteit van de aanleg en door de betrekkelijke gaafheid waarin het geheel bewaard is gebleven, in die zin dat het Agnetapark nog steeds wordt bewoond, terwijl de situering aan de stadsgrens in de loop van een eeuw niet ingrijpend is veranderd. Opmerkelijk genoeg weerhielden de besloten situatie van het terrein en de permanente aanwezigheid van de directeur in deze 'idylle der nijverheid' veel arbeiders ervan de gistfabriek als hun huisvesting in het Agnetapark te kiezen. Ondanks de goede woningen en het fraaie park stonden dikwijls woningen leeg en werden ze veel bewoond door arbeiders van andere bedrijven. De woningen zijn in 1988 gerenoveerd.

  Literatuur

Illustraties:

Literatuur wordt geladen ...