Naam: houten woonhuis Aalsmeer
Type: woonhuizen;
Opdrachtgever: A.Suermondt
Uitgevoerd: ja
Bestaand: ja
Architecten: Bijvoet, A.M., 1924; Duiker, J., 1924;
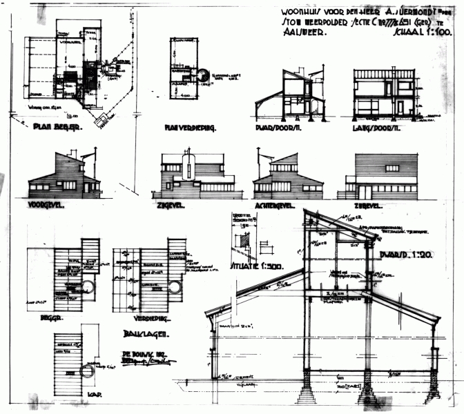
Adres: Stommeerkade 64, Aalsmeer;
Archiefgegevens: NAi/DUIK 72 (tekening, 1924)
Bijzonderheden:

Het houten woonhuis in Aalsmeer wordt in veel publicaties over moderne architectuur genoemd, omdat het wordt gezien als een van ede eerste producten van het Nieuwe Bouwen. Het huis bestaat uit een schuur, een woonkamer, een wc, een vestibule en een serre. Op de verdieping liggen twee slaapkamers en een kleedkamer. de verbinding tussen beide verdiepingen is een spiltrap die in een gemetselde cilinder is geplaatst en buiten het de woning staat.Het ontwerp is ge�nspireerd door de kassenbouw zoals die, rond die tijd, in de tuinbouwstreken gebruikelijk was. De constructiewijze was eenvoudig en daardoor goedkoop. Hiermee wordt dit huis ��n van de eerste werken van Duiker en Bijvoet waarin de idee�n van het Nieuwe Bouwen over eenvoudig, licht en goedkoop bouwen wordt verwezenlijkt. Het huis heeft een houten draagconstructie gebaseerd op een duidelijk maatsysteem met stalen raamkozijnen. Uitzonderingen op het systeem is de cilinder met het trappenhuis annex watertoren. Het is voor het eerst dat Duiker en Bijvoet de door hen zo verguisde 'zware en vochtige' baksteen niet voor een woningproject gebruiken.De woning is in de jaren 80 verbouwd. De buitenwanden zijn nu gestuct, het trappenhuis is van een klamplaag voorzien, het dak is met pannen belegd, de ramen zijn vervangen en de schuur is, met gewijzigde gevelindeling, bij het huis getrokken.

  Literatuur

Illustraties:

Literatuur wordt geladen ...